Обратный звонок
Часы работы с 10:00 - 18:00
Выходные: суббота воскресенье

Экран на раме Kauber FV.169.316.WFLEX.CIN

Код товара : 320422

Frame Velvet Cinema 136” 16:9 White Flex, область просмотра 169x300 см., размер по раме 185х316 см.

273 216 Включая НДС 20%: 45 536,00
  • УточняетсяПоставка
  • После поставки*Самовывоз
  • 1000р.В пределах МКАД
  • По тарифам ТКДоставка до ТК
  • Необходима предоплата
  • 1500 р. Мин. сумма заказа
  • 119331, г. Москва ул. Марии Ульяновой дом 17а, этаж 2, офис 10Адрес:

Стационарный проекционный экран Kauber Frame Velvet на раме в комплекте с видеопроектором гармонично дополнит интерьер ресторана, бара или кафе. А в случаях, когда планировка помещения и вкусы владельца допускают постоянное присутствие экрана в интерьере, именно экран на раме будет естественным выбором для домашнего кинотеатра.

Дизайн корпуса экранов Kauber серии Frame Velvet элегантен и неповторим. Серия Frame Velvet создана специально для домашнего кинотеатра и спроектирована с учётом оптимальной передачи изображения. Для наиболее естественного изображения применяется матовое белое полотно из поливинилхлорида, покрытое стекловолокном. Материал экрана обеспечивает максимально естественную цветопередачу и рассеяние света. Мы настоятельно рекомендуем ценителям современного кино обратить на него внимание.

Преимущества экрана Kauber Frame Velvet:
  • - Рама покрыта черным бархатом, что устраняет паразитное рассеяние света (бархат хорошо поглощает свет). Наклон поверхности рамки по отношению к экрану составляет 45°. Это решение препятствует нежелательным отражениям света;
  • - Обратная сторона экрана имеет черный цвет - для улучшения контрастности и глубины изображения, а также предотвращения паразитного рассеяния света с тыльной стороны (светонепроницаемость полотна—95%);
  • - Идеально плоское полотно с основой - материал поливинилхлорид. Полотно равномерно натянуто по периметру рамки, что препятствует возникновению неровностей и волн во время эксплуатации;
  • - Отсутствие швов на проекционной поверхности;
  • - Экран может быть подвешен на стене либо к потолку с помощью скрытых креплений. Система работает с большинством креплений, предлагаемых на рынке;
  • - Легкая сборка.
Особенности и характеристики экрана Kauber Frame Velvet:
  • - Система менеджмента качества производства экрана соответствует международным стандартам ISO9001-2000;
  • - Корпус экрана выполнен из алюминия, имеет прочную и стабильную конструкцию;
  • - Материалы полотна экрана экологически безопасны, полностью удовлетворяют требованиям пожарной безопасности к строительным материалам и компонентам;
  • - Экранное полотно поставляется в формате 16:9;
  • - Угол обзора 170 градусов;
  • - Коэффициент усиления составляет 1,0;
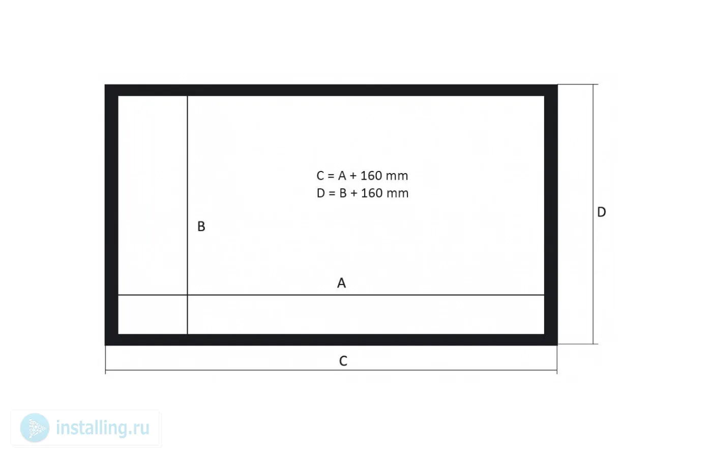
  • - Рабочая область изображения обрамлена алюминиевой рамой, покрытой чёрным бархатом. Ширина сторон - 8 см.
  • Название линейки Frame VELVET
  • Тип Стационарный
  • Способ установки Настенно-потолочный
  • Конструкция На раме
  • Формат (соотношение сторон) 16:9
  • Рабочая поверхность, ширина (см) 300
  • Рабочая поверхность, высота (см) 169
  • Рабочая поверхность, диагональ (см) 344
  • Полотно White Flex
  • Тип полотна Отражающее
  • Полотно, ширина (см) 316
  • Полотно, высота (см) 179
  • Кайма по периметру (см) 5
  • Корпус, длина (см) 316